Spacieuse villa de 9 chambres avec vues panoramiques à Sotogrande Alto
Cette impressionnante villa est située dans la célèbre Zona F de Sotogrande Alto, Cadix, un lieu privilégié pour sa tranquillité et sa proximité des terrains de golf et des écoles. Conçu pour ceux qui apprécient l’espace et le confort, la propriété allie vie moderne avec des détails architecturaux élégants. L’aménagement expansif de la maison, l’intrigue généreuse, et les caractéristiques réfléchies le rendent idéal pour les grandes familles ou ceux qui aiment divertir.
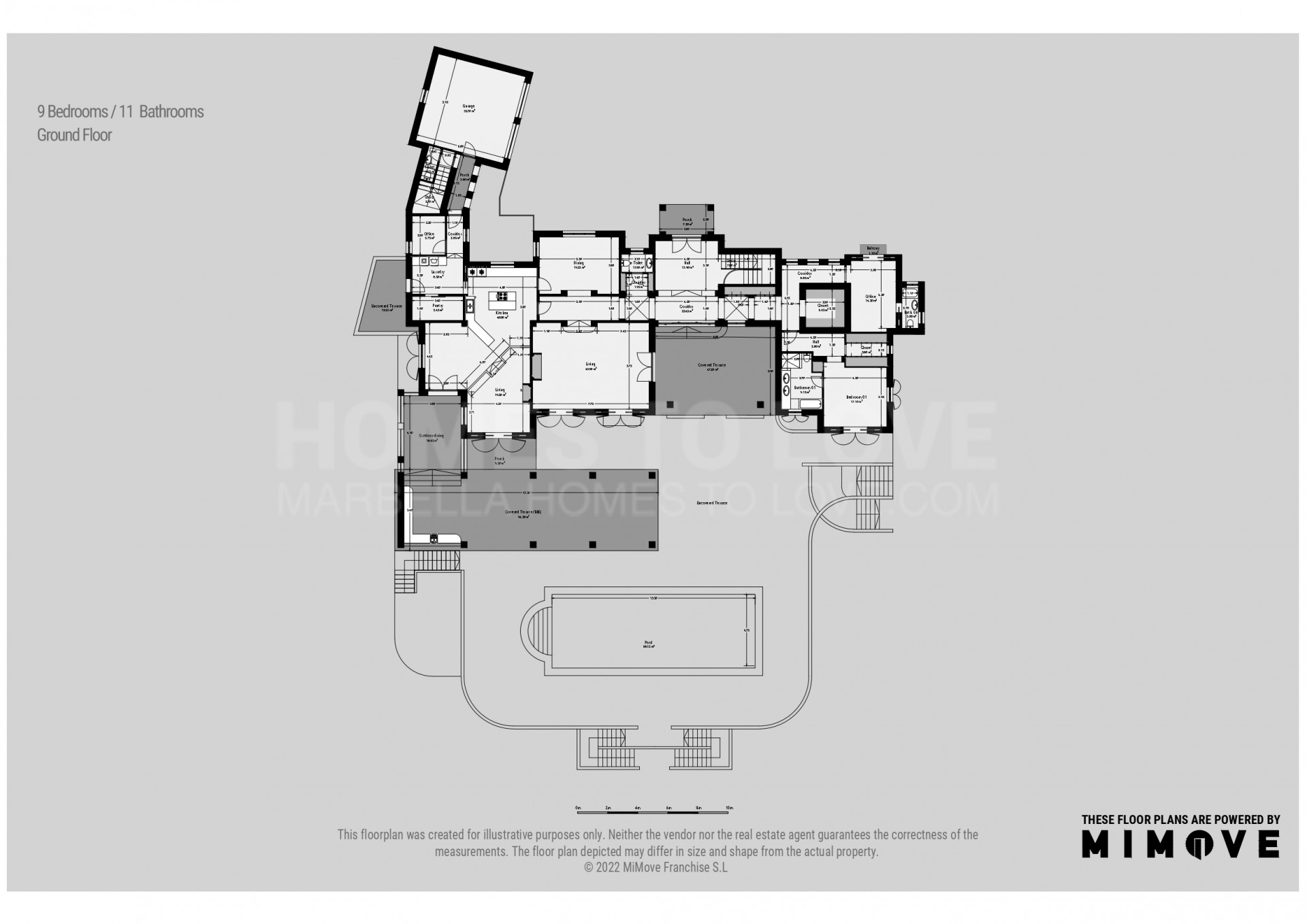
La villa offre neuf chambres et onze salles de bains, offrant un hébergement ample pour les résidents et les invités. L’intérieur s’étend sur 720m2 dans une superficie totale construite de 1 084m2, ce qui assure à chaque pièce une atmosphère aérée et lumineuse. La propriété est équipée de climatisation, chauffage au sol dans l’ensemble, et une cheminée, assurant le confort dans chaque saison. Il y a un appartement d’invités dédié, une chambre d’hôtes, et un bureau pour des arrangements de vie flexibles, tandis que le sous-sol, le débarras et la buanderie ajoutent la commodité pratique. Le statut de villa non meublé présente une toile vierge pour la personnalisation.
La vie en plein air est tout aussi impressionnante, avec une terrasse privée donnant sur une piscine d’eau salée et des jardins aménagés sur un terrain de 3 557m2. La villa bénéficie d’une vue panoramique et partielle sur la mer, d’un espace barbecue et d’une cave à vin, améliorant ainsi l’expérience divertissante. Les caractéristiques supplémentaires comprennent une toilette invités, vue sur la piscine, et la propriété est bon état. Son excellent emplacement assure un accès facile à des terrains de golf et des écoles réputés, ce qui en fait un choix exceptionnel à Sotogrande.
• 9 chambres
• 11 salles de bains
• Surface construite : 1.084m2
• Intérieur: 720m2
• Taille du terrain: 3,557m2
• Climatisation et chauffage au sol dans l’ensemble
• Cheminée
• Piscine en eau salée
• Sous-sol, débarras, buanderie
• Appartement d’amis, chambre d’amis, bureau
• Terrasse privée, espace barbecue
• Vue panoramique et partielle sur la mer
• Près du golf et des écoles
• non meublés
• Bon état
- Référence
- V360
- Type
- Villa
- Localisation
- Zona F, Sotogrande
- Lits
- 9
- Bains
- 11
- Bâtir m²
- 1084
- Intérieur m²
- 720
- Parcelle m²
- 3.557
- Piscine
- Privé
- Jardin
- Privé
- Garage
- Privé
- Community
- 196 €
- Ordures
- 320 €
- Ibi
- 4.045 €
Caractéristiques supplémentaires
- Appartement d’invités
- Barbecue
- Bon état
- Buanderie
- Bureau
- Cave
- Cave à vin
- Chambre d’invités
- Chauffage par le sol (partout)
- Cheminée
- Climatisation
- Entrepôt
- Golf à proximité
- Non meublé
- Piscine d’eau salée
- Proche des écoles
- Terrasse privée
- Toilette d’invités
- Vue panoramique
- Vue partielle sur la mer
- Vue sur la piscine
Propriétés similaires
Almenara – Sotogrande Alto Villa à vendre à Almenara, Sotogrande Alto
- 5 Lits
- 6 Bains
- 2.381 m² Parcelle
- 988 m² Construit

