749.000 €, Marbella, 3 lits, 183 mts² construit

Duplex Penthouse à vendre à Aloha Jardins

Penthouse en duplex clé en main à vendre à Aloha Gardens, Nueva Andalousie. Situé au cœur des jardins d’Aloha, l’une des communautés les plus recherchées et bien établies de Nueva Andalucía, cet appartement entièrement rénové de trois chambres à coucher, deux salles de bains offre une occasion d’investissement exceptionnelle, avec une licence touristique valide et un fort potentiel de location.
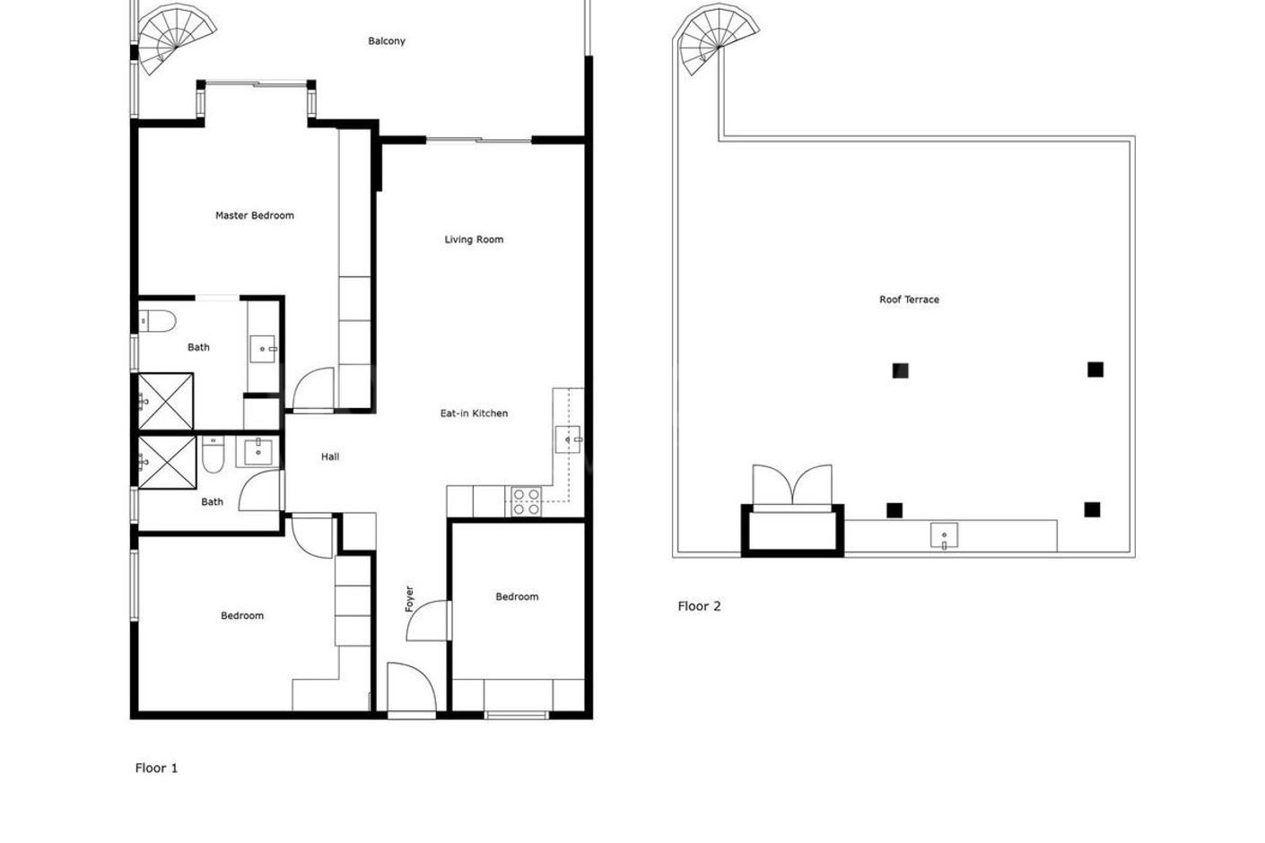
Bénéficiant d’une superficie totale construite de 183 m2, l’appartement dispose d’un espace de vie lumineux et spacieux, offrant une cuisine moderne élégante avec un salon confortable et un espace repas. Le salon principal s’ouvre sur une terrasse orientée ouest, idéale pour profiter des chaudes soirées méditerranéennes.
L’une des caractéristiques de la maison est sa terrasse privée sur le toit de 54 m2, offrant une vue ininterrompue sur les montagnes de Marbella. Cet espace extérieur ensoleillé offre une évasion paisible et est idéal pour divertir, bronzer ou simplement se détendre en toute intimité.
La propriété est entièrement meublée et prête à se déplacer, ce qui en fait un investissement clé en main idéal. Avec une licence touristique active en place, il est prêt à générer immédiatement des revenus locatifs à court terme, tout en attirant les locataires à long terme. Son emplacement privilégié à distance de marche des commodités assure une forte demande de location toute l’année.
Jardins Aloha – Vivre en toute sécurité au cœur de la vallée du golf.
Aloha Gardens est un complexe magnifiquement entretenu dans la prestigieuse vallée de golf Nueva Andalucía, connue pour ses jardins tropicaux luxuriants, ses trois piscines communes et sa sécurité 24 heures sur 24. Le développement est entouré par certains des meilleurs terrains de golf de Marbella, dont Aloha Golf, Las Brisas et Los Naranjos, ce qui en fait un favori parmi les amateurs de golf.
A quelques pas de l’appartement, les résidents peuvent profiter d’un large choix de restaurants, cafés, bars, boutiques et centres de bien-être. Les plages de Marbella, la marina animée de Puerto Banús et le Golden Mile sont tous à seulement 5-10 minutes en voiture, offrant un style de vie imbattable avec tout à portée de main.
Principales caractéristiques :
• 3 chambres, 2 salles de bains
• Entièrement rénové et meublé
• Cuisine ouverte et salon
• Terrasse orientée ouest + solarium privé sur le toit de 54 m2
• Belle vue sur la montagne
• Licence touristique pour les locations à court terme
• Communauté sécurisée fermée avec piscines et jardins
• Espace de stationnement désigné inclus
• Retours de loyers élevés prouvés
• Surface construite : 183 m2
Que vous recherchiez un investissement à haut rendement, une maison de vacances élégante ou une base dans l’un des quartiers résidentiels les plus prestigieux de Marbella, cet appartement Aloha Gardens est prêt à livrer.

Référence
185639
Type
Duplex Penthouse
Localisation
Aloha Gardens, Marbella
Lits
3
Bains
2
Salles de bains attenantes
1
Surface construite en
183
Surface intérieure m2
129
Terrasse m2
54
Piscine
Communautaire
Jardin
Communautaire
Garage
Privé
Community
400 €
Année de construction
1.991
L’orientation
O

Caractéristiques supplémentaires

  • Balcon
  • Barbecue
  • Chambre d’invités
  • Climatisation
  • Climatisation individuelle
  • Cuisine entièrement adaptée
  • Cuisine ouverte
  • Double vitrage
  • Entièrement meublé
  • Entrepôt
  • Excellent état
  • Golf à proximité
  • Internet – Wi-Fi
  • Parc pour enfants proche
  • Placards
  • Plancher en marbre
  • Portes en verre
  • Proche de la mer/plage
  • Proche des écoles
  • Près de la ville
  • Près du port
  • Récemment rénové
  • Résidence fermée
  • Salle de séjour
  • Salle à manger
  • Service de sécurité 24h
  • Services de proximité
  • Solarium
  • Terrasse couverte
  • Terrasse découverte
  • Terrasse privée
  • Toilette d’invités
  • Transport proche
  • Vue montagne
  • Vue panoramique
  • Vue sur la piscine
  • Vue sur le jardin
  • À proximité des commerces

Aloha Gardens, Marbella

Prendre contact +34 674 52 75 99

Imprimer la brochure PDF