995.000 €, Mijas Costa, 2 спальни, 114 mts² построено
Пентхаус на продажу в Calanova Golf, Михас Коста
- Референс
- 361-12273P
- Тип
- Пентхаус
- Местоположение
- Calanova Golf, Михас Коста
- Спальни
- 2
- Ванные комнаты
- 2
- Ванных при спальнях
- 1
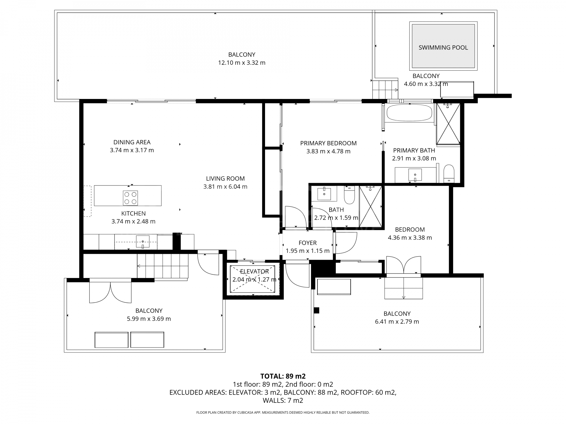
- общая площадь 2
- 114
- Внутренняя площадь м2
- 86
- Терраса м2
- 145
- Бассейн
- Частный
- Сад
- общий
- Гараж
- Частный
- Комунидад
- 412 €
- Год постройки
- 2.022
- Ориентация
- S
Дополнительные характеристики
- ArmoredDoor
- Aвтоматическая система орошения
- CoWorkingSpace
- GarageIncludedInPrice
- Аэротермия
- Балкон
- Барбекю
- Бассейн с подогревом воды
- Безопасный вход
- Вид на бассейн
- Вид на гольф-поле
- Вид на горы
- Вид на море
- Вид на сельскую местность
- Возле поля для гольфа
- Встроенные шкафы
- Горная сторона
- Двойные стеклопакеты
- Джакузи
- Домашние животные разрешены
- Домофон
- Закрытая территория
- Защитные жалюзи
- Интернет – Wi-Fi
- Интернет – оптоволокно
- Камеры наблюдения
- Кладовое помещение
- Кондиционирование
- Консьерж-сервис
- Круглосуточная охрана
- Крытый бассейн
- Курорт – SPA
- Лифт
- Морской бассейн
- Открытая кухня
- Открытая терраса
- Отличное состояние
- Панорамный вид
- Подогрев полов в ванных комнатах
- Полностью оборудованная кухня
- Полы керамическая плитка
- Рядом с магазинами
- Сауна
- Система домашней автоматизации
- Собственная терраса
- Солярий
- Спортивный зал
- Стеклянные двери
- Электрические жалюзи
- близко к городу
- доступ для инвалидов
- немеблированный
Связаться с нами
+34 674 52 75 99

