Villa de lujo con jardín de 3 dormitorios en Higuerón West
Presentamos a la venta este lujoso apartamento de planta baja – villa con jardín en la prestigiosa zona de Fuengirola, en una urbanización muy solicitada.
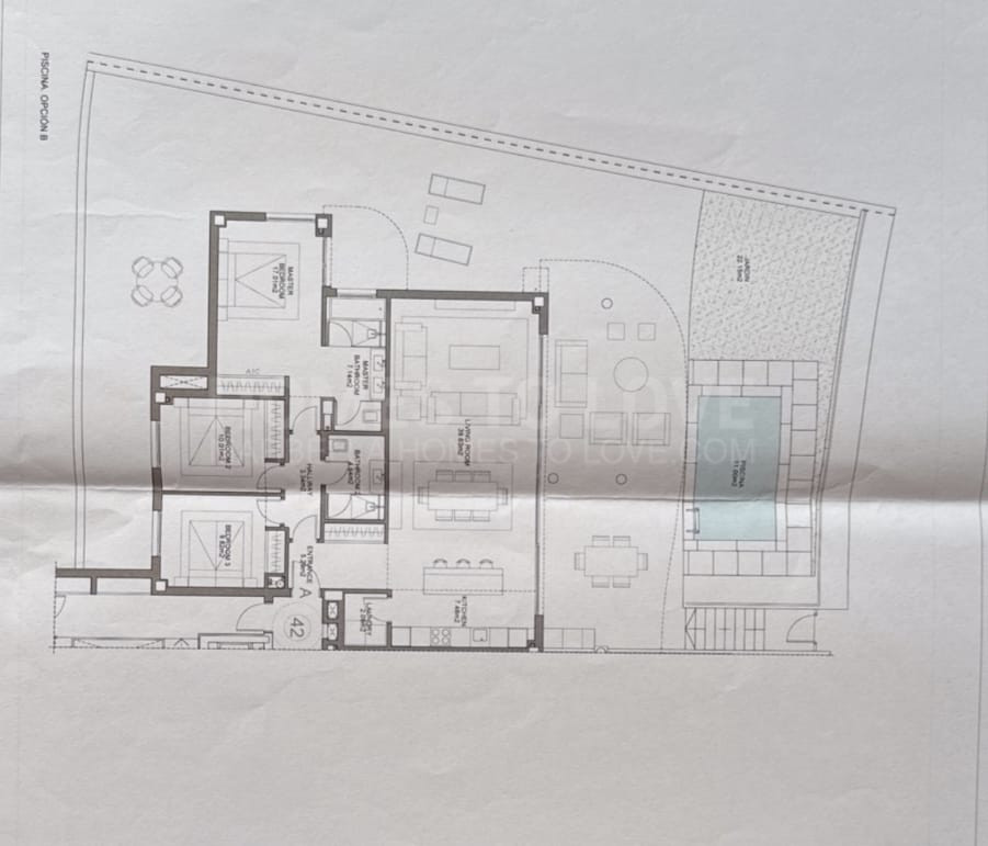
Con su propia piscina privada climatizada y con acceso directo a dos piscinas comunitarias y áreas verdes.
Espaciosa y luminosa, esquinera y exterior: tiene todas las características de una villa con jardín, una generosa terraza y su propia privacidad dentro de una encantadora y tranquila urbanización.
Algunas vistas al mar y a la montaña desde la propiedad.
Consta de 3 dormitorios dobles, todos con acceso directo a la terraza, 2 baños completos de bonito diseño, cocina americana equipada de alta calidad con lavadero y salón.
Aire acondicionado (frío/calor) en todo el apartamento (controlable a distancia), suelo radiante de agua en todas las habitaciones y suelo radiante eléctrico en los baños.
Se puede vender con todos los muebles y electrodomésticos por coste adicional.
El apartamento se vende con 2 plazas de aparcamiento subterráneo y un amplio trastero.
Hay ascensor y fácil acceso a todas las zonas comunes.
Los residentes pueden disfrutar de instalaciones deportivas y de bienestar cercanas, pistas de pádel y tenis, gimnasio, centro de belleza y spa, bares y restaurantes.
Hay un servicio de traslado en autobús al club de playa y a la estación de tren de Carvajal.
A sólo 10-15 minutos andando de la playa más cercana y de restaurantes, supermercados y otros servicios.
Este apartamento se alquila con éxito a corto plazo y cuenta con una licencia turística vigente.
Una perfecta oportunidad de inversión o una hermosa casa familiar.
- Referencia
- 361-09664P
- Tipo
- Apartamento Planta Baja
- Ubicación
- El Higueron, Fuengirola
- Dormitorios
- 3
- Baños
- 2
- m² construidos
- 183
- Interior m²
- 148
- Terraza m²
- 24
- Piscina
- Privado
- Jardín
- Privado
- Garage
- Privado
- Comunidad
- 450 €
- Ibi
- 230 €
- Año construcción
- 2.021
- Orientación
- SE
Características adicionales
- Aire acondicionado
- Almacén
- Armarios empotrados
- Ascensor
- Cerca de playa / mar
- Cocina totalmente equipada
- Colegios cerca
- Completamente amueblado
- Comunidad cerrada
- Entrada de seguridad
- Excelente estado
- Garaje incluido
- Gimnasio
- Internet – Wi-Fi
- Lavadero
- Parque infantil cercano
- Patio en planta baja
- Persianas eléctricas
- Piscina climatizada
- Pista de tenis / pádel
- Puertas de cristal
- Salón
- Servicios cercanos
- Sistema domótico
- Suelo radiante (baños)
- Suelo radiante (toda la casa)
- Terraza cubierta
- Terraza descubierta
- Terraza privada
- Tiendas cerca
- Transporte cercano
- Trastero
- Vistas a la montaña
- Vistas a la piscina
- Vistas parciales al mar
Propiedades Similares
El Higueron – Fuengirola Apartamento de tres dormitorios con vistas panorámicas al mar en MedOne, El Higuerón
- 3 Dormitorios
- 2 Baños
- 118 m² Const.
El Higueron – Fuengirola ¡Experimente el factor sorpresa al entrar! Este apartamento de esquina de 3 dormitorios con orientación sur ofrece una sala de estar abierta de lujo que se abre a una terraza muy grande con impresionantes vistas al mar y a la montaña….
- 3 Dormitorios
- 2 Baños
- 122 m² Const.

